Ковши норийные для тяжелых условий SK
Ковши норийные для тяжелых условий SK
Узнать цену
О продукте:
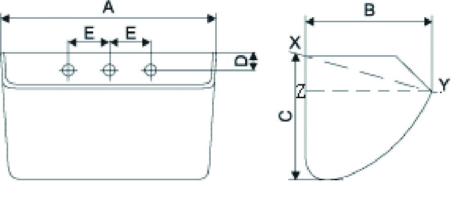
Ковши норийные SK широко используются в агропромышленном комплексе при транспортировке зерновых культур. Изготавливаются из полиэтилена , нейлона и полиуретана.Параметры:

